riqualificazione energetica Condominio via Giuseppe di Vottorio, 12-22 a Opera (MI)

Date 2021

Location Milano

Value € 2.740.000,00

Client Private

Project 2022

Realization -

Category Residential

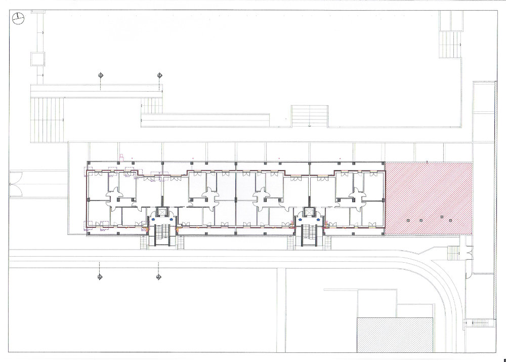
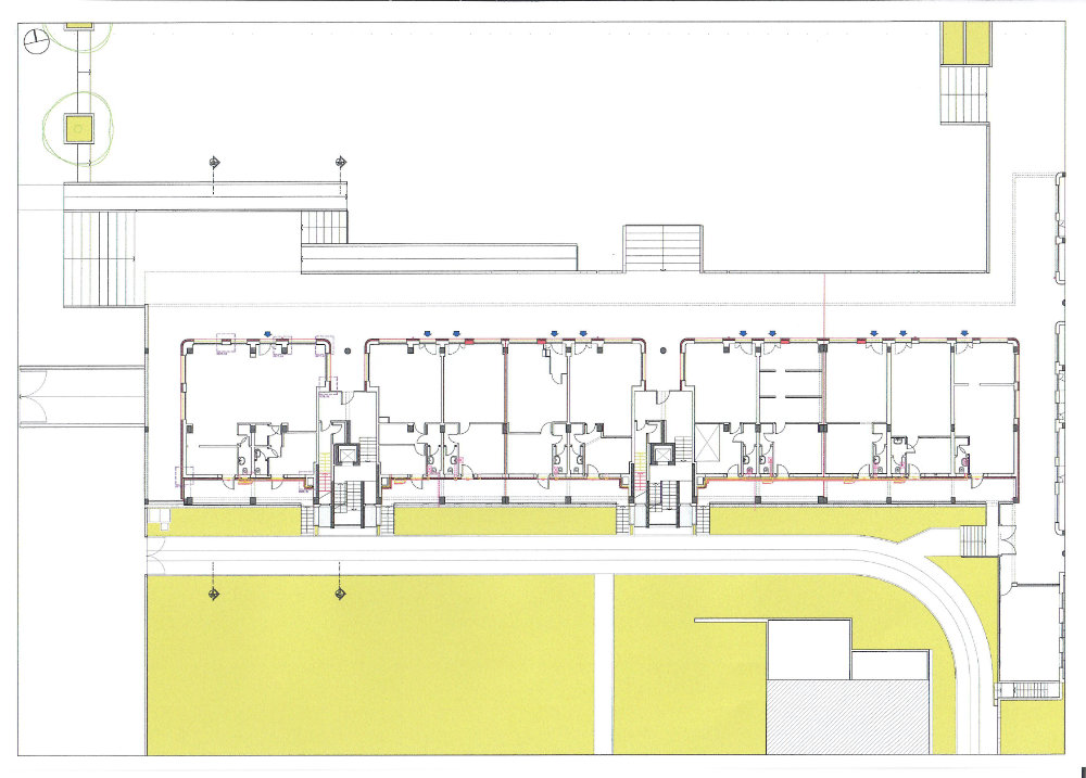
Studio di fattibilità riqualificazione energetica Condominio via Giuseppe di Vottorio, 12-22 a Opera (MI)

L’intervento di efficientamento del Condominio di via Giuseppe di Vittorio 12-22 prevede sia la realizzazione di un cappotto su tutte le facciate a tutti i piani, sia la posa di isolante sui balconi e sotto-balconi, la sostituzione di infissi esterni, comprese tapparelle e cassonetti, l’isolamento dell’ultimo piano con posa di isolante sulla pavimentazione dei solai e sul soffitto dei box compreso il corsello di manovra in corrispondenza solo del fabbricato ai civici 12 e 22. È inoltre prevista la sostituzione di tutte le caldaiette a gas esistenti con nuove caldaiette di nuova generazione compreso l’adeguamento della canna fumaria esistente. In aggiunta potrà essere previsto un piccolo impianto fotovoltaico.

Sono inoltre previsti interventi non rientranti nel superbonus, ma comunque detraibili fino al 50% con opzione di sconto in fattura fino al 50% che riguardano la riqualificazione delle parti in cemento armato a vista al 1° piano e all’ultimo piano, la realizzazione di nuove guaine al primo piano e in corrispondenza dei balconi a tutti i piani, il rifacimento delle murature sulle due testate dei lati corti del fabbricato e la demolizione dei voltini delle finestre e porte finestre a tutti i piani per adeguarli all’autorizzazione edilizia rilasciata dal Comune di Opera durante l’edificazione del fabbricato. Oltre a tali interventi si prevede di adeguare/rifare i due ascensori esistenti e di realizzare una nuova fermata degli ascensori che arrivi fino al piano seminterrato per raggiungere direttamente i box modificando i gradini del corridoio di accesso al piano terra