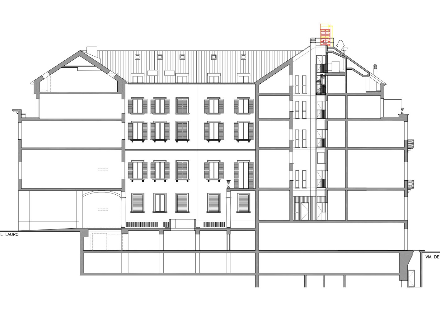
via Del Lauro 6 – via Dell’Orso 7A a Milano

Date 2021
Location Milano
Value -
Client Private
Project 2021
Realization 2022
Category Residential

Riqualificazione facciate Condominio via Del Lauro 6 – via Dell’Orso 7A a Milano

L’intervento ha previsto il progetto di riqualificazione delle facciate del Condominio di via Del Lauro 6 – via Dell’Orso 7A a Milano con un vincolo diretto della Soprintendenza di Milano, pertanto si è proceduto secondo le indicazioni della Soprintendenza ovvero prima con una campionatura delle facciate attraverso la verifica della sua stratigrafia per poi intervenire con la sua totale riquilificazione sia delle superfici intonacate che delle superfici in pietra anche con la ricostruzione di alcuni frontalini del balcone su via Del Lauro.