Culturale della città di Marcallo con Casone (MI)

Date Febbraio 2005
Location Marcallo con Casone (MI)
Value € 500.000,00
Client Comune di Marcallo con Casone (MI)
Project 2005-2007
Realization 2007-2010
Category Pubblic Works

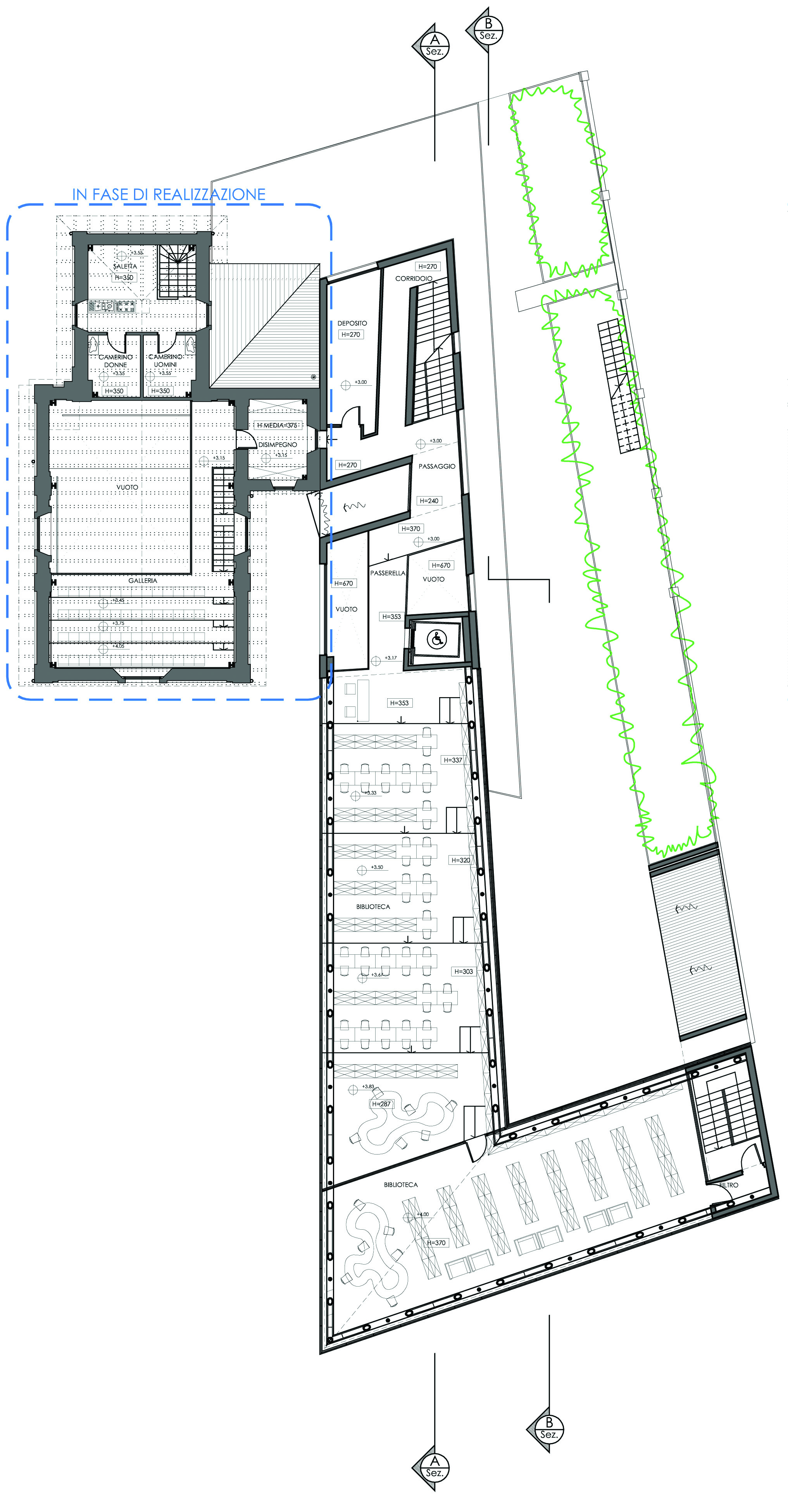
Ripristino strutturale ed architettonico, adeguamento funzionale ed impiantistico dell’ex-chiesa di San Marco nel rispetto delle caratteristiche plani-volumetriche complessive e compositive dei prospetti, dell’impianto tipologico, dei materiali e delle tecniche costruttive originarie.

 

Il Centro Culturale della città di Marcallo sarà realizzato attraverso il recupero dell’ex-chiesa di San Marco e la costruzione di un nuovo corpo di fabbrica, in gran parte vetrato. L’intero intervento è caratterizzato dall’utilizzo delle più moderne tecnologie di costruzione a “secco” e da spiccate qualità di risparmio energetico. L’ex-chiesa di San Marco, di cui non restano che pochi ruderi, sarà restaurata per le parti ancora esistenti, mentre il resto dell’antica volumetria, oramai scomparsa, sarà ricostituito con l’uso di nuovi materiali. Le sue strutture ed il mezzanino che compone la galleria della nuova sala musicale, saranno in carpenteria metallica, le vetrate saranno “bioclimatiche” (vetrate bassoemissive tipo “Glaverbel planibel top N”). Il nuovo volume è costituito da un corpo a forma di “L” a “ponte” grazie all’utilizzo di grandi travi reticolari, che permettono la completa fruibilità della piazza sottostante. L’ingresso principale al complesso è caratterizzato da uno spazio a doppia altezza su cui gravita una passerella in ferro, legno e vetro. Esso ospiterà uno spazio espositivo a piano terra ed una biblioteca al primo piano, e sarà interamente vetrato (si prevede di utilizzare cristalli tipo “Okatech”), ad esclusione delle parti dell’edificio con funzione di uffici, locali tecnici o di servizio, le cui pareti perimetrali saranno costituite da un sandwich in lastre di cartongesso (interno) ed in lastre di fibrocemento rinforzato tipo “Aquapanel” (esterno). Si tratta della stessa tecnologia a “secco” utilizzata per ricostituire il volume dell’ex-chiesa. Una copertura a “verde” su cui saranno posizionati anche dei pannelli solari, completa l’isolamento termico della biblioteca e permetterà il recupero dell’acqua piovana che confluirà in una vasca-fontana. L’intero edificio sarà dunque in classe “0”.